El proyecto está dando vueltas desde hace algunos meses en el ámbito portuario y luego de algunas gestiones preliminares, está por ser presentado por el Consorcio de Gestión de Puerto Quequén en un acto que tendría lugar en los próximos días.
Según pudo averiguar Cuatro Vientos, el proyecto se trabaja muy por lo bajo, evitando las estridencias electorales dado que es un trabajo que se inicia a largo plazo, requiriendo una fuerte inversión de más de 10 mil millones de pesos y suponiendo la creación de cientos de puestos de trabajo.
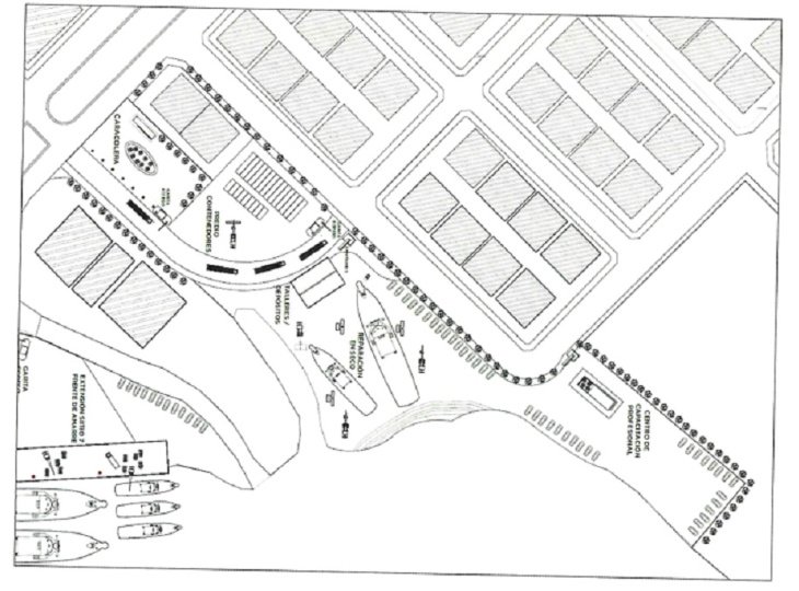
La construcción del Complejo Industrial Pesquero de Puerto Quequén, en la margen necochense de la terminal, preve la remodelación y ampliación del giro 7, con un nuevo muelle, varadero para reparar embarcaciones, frigoríficos, cintas transportadoras y una playa de contenedores refrigerados.

Entre otras instalaciones, el proyecto incluye oficinas, un área de capacitación y de servicios; y la remodelación de la Caracolera (paseo turístico del sector). Además, habrá un espacio destinado a dependencias provinciales y nacionales vinculadas a la actividad pesquera y a Aduanas.
Según los cálculos preliminares, el proyecto demandaría hasta 350 puestos de trabajo en la etapa de construcción, que incluye la construcción de un muelle en un área de más de 2800 m2 y varias cámaras frigoríficas de 500 m2. Para cuando el complejo funciones, se calculan otros 250 puestos de trabajo.

La presentación del proyecto se realizará este viernes en los terrenos donde se instalaría el complejo, al pie de los restos del ex puente Ignacio Ezcurra y contaría con la presencia de autoridades portuarias como la presidenta del CGPQ, Lic Jimena López, y los privados impulsores de la inversión.